EN
News Center
新闻资讯
化工厂聚乙烯氮气加热器的故障排除方法
发布时间:2021-08-16 来源: 阅读量:612

今日分享的不同介质加热器的知识点,下面就让小助手为您分享今日的新闻热点——氮气电加热器

氮气加热器的主要作用是对介质和催化剂进行加热,但在加热过程中,存在电加热器在切断电源以后仍有电流显示,且两个流量表的显示不同,只有一个温度信号。作者着重对这两个问题的解决进行了详细的论述。气体管道加热器和液体管道加热器几点区别:

氮气加热器在乙烯厂各装置被广泛使用。在聚乙烯原料精制单元,精制床在将乙烯、丁烯、异戊烷等原料中的杂质去除过程中,时间一长,分子筛就会饱和而失去对原料进行精制的作用。氮气加热器用于氮气加热,通过对带压氮气均匀加热,使热氮进入分子筛,带走杂质,让分子筛恢复作用,这就是氮气加热器的作用。

在生产中,氮气加热器能否工作正常,直接关系到聚乙烯装置的正常生产。因此必须熟练掌握氮气加热器的工作原理,并能够及时处理故障,才能使装置安稳运行。

然而在近几年的运行中出现了以下故障:1)工艺人员按下停机按钮后,电流表仍显示有电流,这表示加热器仍在工作,SCR不关断。2)加热器在正常运行时,两个盘柜的电流表显示不同,但只有一个温度控制信号。

由于聚乙烯的氮气加热器操作是远程操作,地点在中控室,操作人员按下停机按钮后,如果未将温度控制信号调到零,然而监控画面却显示停机,但电加热器仍在工作,这样时间一长就会损坏设备。以上故障如果不解决,对装置的安全生产会产生极大的威胁,那么如何解决故障,排除安全隐患,先了解一下电加热器的工作原理。

1 电加热器的工作原理

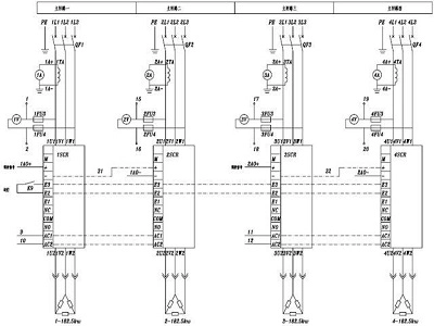
氮气加热器总功率为730 kW,分为4组,每组182.5kW,4组同时工作,每组电热元件为三角形接线。主回路原理图如图1所示。

上图中的K9常开接点接到E2、E3 端子上来控制SCR的通断,SCR的导通大小由AO+ 、AO- mA信号来控制。

实际接线是由两个为一组分别在两个盘柜里。

2 故障现象

在一次工艺签字对4台加热器停电时,电气维护人员发现配电室抽屉柜电流表指示有电流,确认还在运行,但工艺人员说已经停止运行,现场检查发现盘面指示灯指示的是停止运行,但盘面电流表有电流指示,工艺人员将4-20mA温度控制信号降到最低,电流表显示才降为零。

除此之外,工艺操作人员又反映一个问题,加热器在工作时,应该4组加热器电流一样才对,但实际上只是一个盘柜里的两个SCR的电流表显示相同,而这两个盘柜的电流表显示相差近100A左右。

为什么以前都运行得很好,没有发生加热器停下来后还有电流的现象。询问工艺人员才知道,就这次停机,操作人员只是按下停车按钮,没有将设定温度控制信号调到零,到配电室签字停电才将问题暴露出来。这种状态实在是太危险了,时间一长就会损坏设备。

3 故障处理

电气维护人员停电后,打开盘柜检查实际接线是用K9的一个接点带两个盘柜里的一台SCR,另一台用短接线将E2、E3 短接。

经过仔细检查发现原来的接线是用一对K9接点并联接到4台SCR的E2、E3端子上,但是又拆除了,而用短接线短接了两组中的一台。恢复原接线,试机还是不行,K9断开后,SCR依然导通运行。然而在不断的试机过程中发现用K9的一对接点只接1台SCR,就可控制这台SCR的关断。

K9中继只剩下一对常开接点,而我们需要4对常开接点。于是想办法,增加一个中继K9-1和K9并接,接点不够的问题解决了。这样用一对接点单独来控制一台SCR。再次试机,成功。

再来解决两个盘柜电流表显示不相同问题。经过仔细检查,电流表、电流互感器都是正常的,没有故障,那么确实是工作电流不同。SCR的通断大小是由DCS系统送过来一个4-20mA量信号来控制的

DCS来的温度控制信号通过ISC3(隔离信号变送器/分配器),一分为二,变成两路大小一样输出,供给两个盘柜的SCR,SCR的通断大小也应该一样才对。通过对ISC3检查,发现2个问题:一是有一路输出中间有接头,接触的不是很好,造成接触电阻大;二是这个ISC3两路输出不是一样大,有差异。这样就导致两个盘柜的工作电流显示不同。我们把有接头的二次线更换成新线,同时把ISC3也更换掉。开机试车,正常。

5 结论

通过对聚乙烯氮气电加热器排故,对电加热器的结构、工作原理有了更深的了解。分析故障发生的原因,总结处理故障方法,边学习边实践,才能积累经验,经验多了,处理故障问题才能得心应手。

今日的分享到这里就结束了,万森欢迎您的来电咨询!